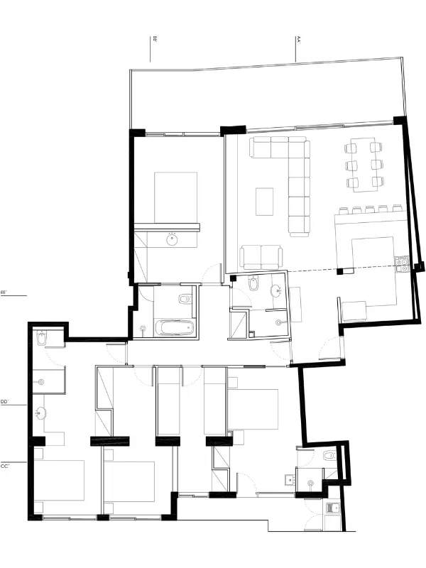
2010/Reformes d’interiors
Promotor: Privat
Superfície: 172 m2
Emplaçament: Sant Antoni de Calonge – Girona
Projecte i direcció d’obra
Aquest lloc web utilitza galetes per tal de proporcionar-vos la millor experiència d’usuari possible. La informació de les galetes s’emmagatzema al navegador i realitza funcions com ara reconèixer-vos quan torneu a la pàgina web i ajuda a l'equip a comprendre quines seccions del lloc web us semblen més interessants i útils.















